Aller à :

  • Aller à la recherche
  • Aller au menu principal
  • Aller au contenu
0
  • Accueil
  • Acheter
  • Immo professionnel
  • Estimer
  • Biens vendus
  • Actualités
  • Notre agence
  • Contact
0
VotreRecherche
Dans un rayon de
Budget
entre et €
Min €
Max €
  1. Accueil
  2. Vente
  3. Saone et loire
  4. Bourbon lancy
  5. Maison
  6. T7
  7. Belle vue degagee et dominante sur la campagne environnante 1 5 kilometre du centre
Vendu
Réf : V5407
Maison
Belle vue dégagée et dominante sur la campagne environnante. 1.5 kilomètre du centre.
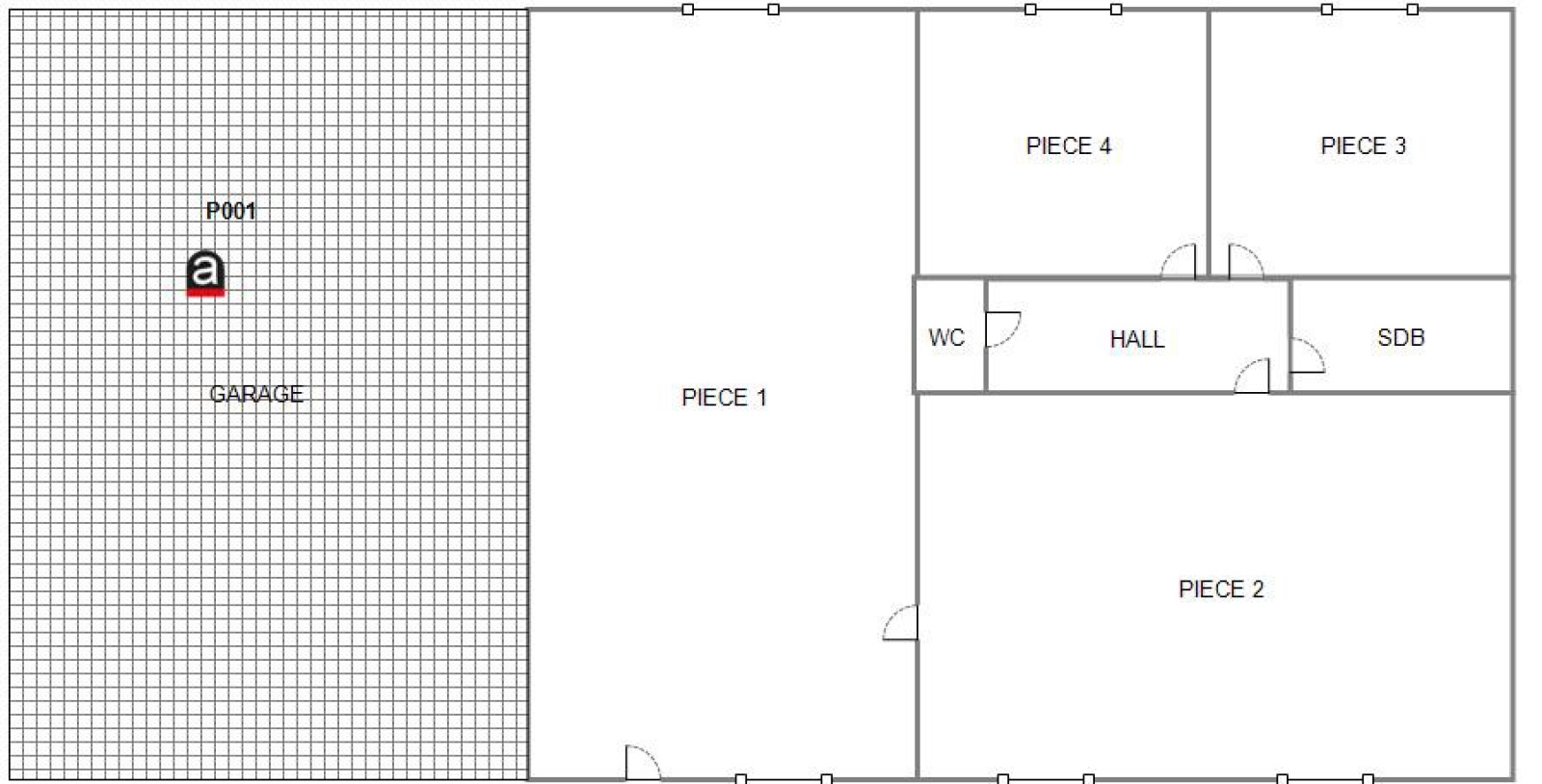
Nombre de pièces 7
Nombre de chambres 4
Nombre de salles de bain 1
Salle d'eau 1
TRAD_MELTEM_Superficieterrainenm² 3393 m²

Belle vue dégagée et dominante sur la campagne environnante. 1.5 kilomètre du centre. Bourbon-Lancy (71140)

VENTE REALISEE PAR L'INTERMEDIAIRE DE VOTRE AGENCE. Exclusivité de votre agence. 71140 BOURBON-LANCY. Belle vue dégagée et dominante sur la campagne environnante. 1.5 kilomètre du centre. A proximité de Mâcon, Chalon-sur-Saône et Nevers… Intérieurs à rénover entièrement. Toiture arrière à réhabiliter entièrement et à réviser dans son ensemble. maison composée d'un rez-de-chaussée à réhabiliter entièrement divisé en : Une pièce avec cuisine aménagée, séjour, couloir, deux chambres, salle de bain à finir d’aménager, w-c. Un premier étage (auquel on accède par un grand escalier en béton qui n'a jamais été terminé pour ce qui concerne son revêtement) composé de deux appartements : Un premier appartement à rénover entièrement et en mauvais état divisé en : hall d'entrée, cuisine, dégagement, séjour, chambre avec salle d’eau, WC. Un deuxième appartement divisé en deux pièces principales, salle de bain et WC. grenier aménageable situé au-dessus. Un grand garage attenant à la maison (pouvant accueillir un camping-car ou plusieurs véhicules) et un bûcher. Terrain 3.393 m2 arboré.Plusieurs arrêts de bus à moins de 500 mètres, La gare de Bourbon-Lancy est accessible en voiture en quelques minutes et dessert principalement des trains TER reliant les villes voisines de Paray-le-Monial et Digoin. Proximité de la route départementale D982, reliant Bourbon-Lancy à Digoin. Les écoles primaires et maternelles les plus proches sont l'école primaire Saint-Denis et l'école maternelle, situées à environ 1 kilomètre. Le collège le plus proche, le collège de Bourbon-Lancy, est à environ 1.5 kilomètres. chauffage central au gaz (citerne extérieure) par radiateurs. système d'assainissement individuel non encore contrôlé. Renseignements fournis à titre indicatif sous réserve de contrôle et d'expertise ultérieurs non encore effectués. le DPE a été réalisé en janvier 2022. document non contractuel. Les prix indiqués s'entendent honoraires d'agence inclus à La charge du vendeur. Frais de notaire en sus.

  • Général
  • Détails +
  • Copropriété
  • DPE
  • Quartier
Caractérisque Valeurs
Code postal 71140
Surface habitable (m²) 200,16 m²
surface terrain 3 393 m²
Surface loi Carrez (m²) 200,16 m²
Nombre de chambre(s) 4
Nombre de pièces 7
Nombre de niveaux 2
Vue Belle vue dégagée et dominante sur la campagne environnante
Caractérisque Valeurs
Nb de salle de bains 1
Nb de salle d'eau 1
Cuisine Séparée
Mode de chauffage Gaz
Type de chauffage TRAD_TYPE_CHAUFF_CHAUDIERE
Format de chauffage Central
Interphone NON
Visiophone NON
Nombre de garage 2
Exposition Sud
Année de construction 1910
Caractérisque Valeurs
Copropriété NON
DPE GES
  • Commerces et santé
  • Loisirs
  • Ecoles
  • Transports
  • Pratique
Partager le bien
Nos outils
Imprimer Imprimer
Calculatrice financière

* Champ obligatoire

Partager l'annonce

* champs obligatoires

Les informations recueillies sur ce formulaire sont enregistrées dans un fichier informatisé par La Boite Immo agissant comme Sous-traitant du traitement pour la gestion de la clientèle/prospects de l'Agence / du Réseau qui reste Responsable du Traitement de vos Données personnelles. La base légale du traitement repose sur l'intérêt légitime de l'Agence / du Réseau. Elles sont conservées jusqu'à demande de suppression et sont destinées à l'Agence / au Réseau. Conformément à la loi « informatique et libertés », vous disposez des droits d’accès, de rectification, d’effacement, d’opposition, de limitation et de portabilité de vos données. Vous pouvez retirer votre consentement à tout moment en contactant directement l’Agence / Le Réseau. Consultez le site https://cnil.fr/fr pour plus d’informations sur vos droits. Si vous estimez, après avoir contacté l'Agence / le Réseau, que vos droits « Informatique et Libertés » ne sont pas respectés, vous pouvez adresser une réclamation à la CNIL. Nous vous informons de l’existence de la liste d'opposition au démarchage téléphonique « Bloctel », sur laquelle vous pouvez vous inscrire ici : https://www.bloctel.gouv.fr Dans le cadre de la protection des Données personnelles, nous vous invitons à ne pas inscrire de Données sensibles dans le champ de saisie libre.
Ce site est protégé par reCAPTCHA, les Politiques de Confidentialité et les Conditions d'Utilisation de Google s'appliquent.

Détail des diagnostics énergétiques
DPE GES

Montant estimé des dépenses annuelles d'énergie de ce logement pour un usage standard est compris entre 3 790 € et 5 170 € . 2021 étant l'année de référence des prix de l'énergie utilisés pour établir cette estimation.

Partager avec vos proches

Facebook Facebook
Messenger Messenger
Twitter Twitter
WhatsApp WhatsApp
LinkedIn LinkedIn
Copier le lien Copier le lien
Contacter
l'agence

Remplissez ce formulaire, nous ferons de notre mieux pour vous répondre dans les meilleurs délais.

AGENCE CENTRALE. Conseil Immobilier. TOURS. FONDETTES. LUYNES.
02 47 40 10 10
E-mail monagencecentrale@orange.fr

7 place des victoires 37230 Luynes

Fondettes
02 47 40 10 10
E-mail monagencecentrale@orange.fr

1 rue Eugène Gouïn 37230 Fondettes

Tours
02 47 40 10 10
E-mail monagencecentrale@orange.fr

18 rue de la Grosse Tour 37000 Tours

TRAD_MELTEM_voscoordonnees
TRAD_MELTEM_voredemande
Règlementation

* Champ obligatoire

Les informations recueillies sur ce formulaire sont enregistrées dans un fichier informatisé par La Boite Immo agissant comme Sous-traitant du traitement pour la gestion de la clientèle/prospects de l'Agence / du Réseau qui reste Responsable du Traitement de vos Données personnelles. La base légale du traitement repose sur l'intérêt légitime de l'Agence / du Réseau. Elles sont conservées jusqu'à demande de suppression et sont destinées à l'Agence / au Réseau. Conformément à la loi « informatique et libertés », vous disposez des droits d’accès, de rectification, d’effacement, d’opposition, de limitation et de portabilité de vos données. Vous pouvez retirer votre consentement à tout moment en contactant directement l’Agence / Le Réseau. Consultez le site https://cnil.fr/fr pour plus d’informations sur vos droits. Si vous estimez, après avoir contacté l'Agence / le Réseau, que vos droits « Informatique et Libertés » ne sont pas respectés, vous pouvez adresser une réclamation à la CNIL. Nous vous informons de l’existence de la liste d'opposition au démarchage téléphonique « Bloctel », sur laquelle vous pouvez vous inscrire ici : https://www.bloctel.gouv.fr Dans le cadre de la protection des Données personnelles, nous vous invitons à ne pas inscrire de Données sensibles dans le champ de saisie libre.
Ce site est protégé par reCAPTCHA, les Politiques de Confidentialité et les Conditions d'Utilisation de Google s'appliquent.

Se connecter
Espace propriétaire
Page d'accueil
Adhérents

© 2026 | Tous droits réservés | Traduction powered by Google |

  • Nos honoraires
  • Plan du site
  • Mentions légales
  • Admin
  • Nos liens
  • Politique RGPD

Comme beaucoup, notre site utilise les cookies

On aimerait vous accompagner pendant votre visite. En poursuivant, vous acceptez l'utilisation des cookies par ce site, afin de vous proposer des contenus adaptés et réaliser des statistiques !

Paramétrer

Cookies fonctionnelsCes cookies sont indispensables à la navigation sur le site, pour vous garantir un fonctionnement optimal. Ils ne peuvent donc pas être désactivés.

Statistiques de visitesPour améliorer votre expérience, on a besoin de savoir ce qui vous intéresse !
Les données récoltées sont anonymisées.

?

Google Analytics

En savoir plus