Aller à :

  • Aller à la recherche
  • Aller au menu principal
  • Aller au contenu
0
  • Accueil
  • Acheter
  • Immo professionnel
  • Estimer
  • Biens vendus
  • Actualités
  • Notre agence
  • Contact
0
VotreRecherche
Dans un rayon de
Budget
entre et €
Min €
Max €
  1. Accueil
  2. Vente
  3. Indre et loire
  4. Luynes
  5. Maison
  6. T5
  7. Compromis de vente signe par votre agence prestige
Sous-compromis
Exclusif
Réf : V6889
Maison
COMPROMIS DE VENTE SIGNÉ PAR VOTRE AGENCE.
Nombre de pièces 5
Nombre de chambres 4
Salle d'eau 3
TRAD_MELTEM_Superficieterrainenm² 456 m²
381 800 €

COMPROMIS DE VENTE SIGNÉ PAR VOTRE AGENCE. Luynes (37230)

COMPROMIS DE VENTE SIGNÉ PAR VOTRE AGENCE.

ILS NOUS ONT FAIT CONFIANCE NOUS AVONS FAIT NOTRE MAXIMUM !

Vous aussi contactez Matthieu TRUILLET au 06.48.98.24.49 pour un avis de valeur professionnel qui vous sera offert.

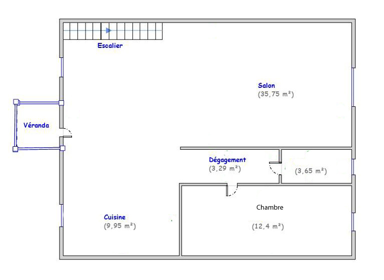
EXCLUSIVITE DE VOTRE AGENCE. En vente dans votre agence et nul part ailleurs. Centre historique de Luynes. très belle maison de caractère à colombages du XVIIe siècle. Commerces (Boulanger-pâtissier, boucher-charcutier etc.) et commodités ( bus, écoles, bibliothèque etc.) sur place. Vues exceptionnelles sur le centre-bourg et son château. 128 m² habitables environ + grandes caves troglodytiques et buanderie. L’ensemble est divisé de la manière suivante : A l’entrée un studio indépendant 23.82 M2 (grande pièce, salle d’eau avec w-c) et une buanderie avec chaufferie. A la suite et à l’étage: pièce de vie 45.7 m2 (avec cuisine aménagée et équipée) jouissant d’une double exposition, Chambre 12.4 m², salle d’eau (2010) avec w-c. Un étage mansardé : (62 m2 au sol): Un grand palier avec espace bureau, 2 chambres (13.37 et 11.71 m2), salle de bains (2010) et w-c. huisseries double vitrage (alu ou PVC). Jardins et terrasses en espalier avec vues. 2 places de stationnement devant la maison + nombreux parking municipaux gratuits 1’ à pied. Pas de travaux à prévoir. Couverture datant de la fin des années 80. Belles promenades de charme à proximité immédiate. 12 ' en voiture (12 Km) de Tours. Commerces (boulangerie, boucherie, charcuterie, restaurants, etc.,) Écoles, bibliothèques, bus, etc. Chauffage central au gaz de ville (1.800 €/an) + poêle à bois. Les caves ont fait l’objet de travaux de confortation en 2023. Murs intérieurs avec doublage briques. Isolation par soufflage de laine de roche du grenier et des rampants en 2010. Foncier : 1 515 €/an. Cette maison de caractère vous est proposée par l'Agence centrale de Luynes 02 47 40 10 10. La commune de Luynes, chef-lieu de canton, fait partie de l’agglomération de TOURS Métropole et est située au cœur du Val de Loire, au pied des coteaux de la Loire (site classé au patrimoine mondial de l’UNESCO). le centre-ville est d’une grande qualité patrimoniale et implanté dans le val adossé au coteau et dominé par un château du XIIème siècle. Les prix indiqués s'entendent honoraires d'agence inclus et frais de notaire en sus.

  • Général
  • Détails +
  • Copropriété
  • Financier
  • DPE
  • Quartier
Caractérisque Valeurs
Code postal 37230
Surface habitable (m²) 128 m²
surface terrain 456 m²
Surface loi Carrez (m²) 128 m²
Nombre de chambre(s) 4
Nombre de pièces 5
Caractérisque Valeurs
Nb de salle d'eau 3
Cuisine Américaine
Type de cuisine Equipée
Mode de chauffage Gaz
Type de chauffage Radiateur
Format de chauffage Individuel
Caractérisque Valeurs
Copropriété NON
Caractérisque Valeurs
Prix de vente honoraires TTC inclus 381 800 €
DPE GES
  • Commerces et santé
  • Loisirs
  • Ecoles
  • Transports
  • Pratique
Cette offre
vous intéresse

* champs obligatoires

Les informations recueillies sur ce formulaire sont enregistrées dans un fichier informatisé par La Boite Immo agissant comme Sous-traitant du traitement pour la gestion de la clientèle/prospects de l'Agence / du Réseau qui reste Responsable du Traitement de vos Données personnelles. La base légale du traitement repose sur l'intérêt légitime de l'Agence / du Réseau. Elles sont conservées jusqu'à demande de suppression et sont destinées à l'Agence / au Réseau. Conformément à la loi « informatique et libertés », vous disposez des droits d’accès, de rectification, d’effacement, d’opposition, de limitation et de portabilité de vos données. Vous pouvez retirer votre consentement à tout moment en contactant directement l’Agence / Le Réseau. Consultez le site https://cnil.fr/fr pour plus d’informations sur vos droits. Si vous estimez, après avoir contacté l'Agence / le Réseau, que vos droits « Informatique et Libertés » ne sont pas respectés, vous pouvez adresser une réclamation à la CNIL. Nous vous informons de l’existence de la liste d'opposition au démarchage téléphonique « Bloctel », sur laquelle vous pouvez vous inscrire ici : https://www.bloctel.gouv.fr Dans le cadre de la protection des Données personnelles, nous vous invitons à ne pas inscrire de Données sensibles dans le champ de saisie libre.
Ce site est protégé par reCAPTCHA, les Politiques de Confidentialité et les Conditions d'Utilisation de Google s'appliquent.

Partager le bien
Nos outils
Imprimer Imprimer
Calculatrice financière

* Champ obligatoire

Partager l'annonce

* champs obligatoires

Les informations recueillies sur ce formulaire sont enregistrées dans un fichier informatisé par La Boite Immo agissant comme Sous-traitant du traitement pour la gestion de la clientèle/prospects de l'Agence / du Réseau qui reste Responsable du Traitement de vos Données personnelles. La base légale du traitement repose sur l'intérêt légitime de l'Agence / du Réseau. Elles sont conservées jusqu'à demande de suppression et sont destinées à l'Agence / au Réseau. Conformément à la loi « informatique et libertés », vous disposez des droits d’accès, de rectification, d’effacement, d’opposition, de limitation et de portabilité de vos données. Vous pouvez retirer votre consentement à tout moment en contactant directement l’Agence / Le Réseau. Consultez le site https://cnil.fr/fr pour plus d’informations sur vos droits. Si vous estimez, après avoir contacté l'Agence / le Réseau, que vos droits « Informatique et Libertés » ne sont pas respectés, vous pouvez adresser une réclamation à la CNIL. Nous vous informons de l’existence de la liste d'opposition au démarchage téléphonique « Bloctel », sur laquelle vous pouvez vous inscrire ici : https://www.bloctel.gouv.fr Dans le cadre de la protection des Données personnelles, nous vous invitons à ne pas inscrire de Données sensibles dans le champ de saisie libre.
Ce site est protégé par reCAPTCHA, les Politiques de Confidentialité et les Conditions d'Utilisation de Google s'appliquent.

Détail des diagnostics énergétiques
DPE GES
DPE en cours

Partager avec vos proches

Facebook Facebook
Messenger Messenger
Twitter Twitter
WhatsApp WhatsApp
LinkedIn LinkedIn
Copier le lien Copier le lien
Contacter
l'agence

Remplissez ce formulaire, nous ferons de notre mieux pour vous répondre dans les meilleurs délais.

AGENCE CENTRALE. Conseil Immobilier. TOURS. FONDETTES. LUYNES.
02 47 40 10 10
E-mail monagencecentrale@orange.fr

7 place des victoires 37230 Luynes

Fondettes
02 47 40 10 10
E-mail monagencecentrale@orange.fr

1 rue Eugène Gouïn 37230 Fondettes

Tours
02 47 40 10 10
E-mail monagencecentrale@orange.fr

18 rue de la Grosse Tour 37000 Tours

TRAD_MELTEM_voscoordonnees
TRAD_MELTEM_voredemande
Règlementation

* Champ obligatoire

Les informations recueillies sur ce formulaire sont enregistrées dans un fichier informatisé par La Boite Immo agissant comme Sous-traitant du traitement pour la gestion de la clientèle/prospects de l'Agence / du Réseau qui reste Responsable du Traitement de vos Données personnelles. La base légale du traitement repose sur l'intérêt légitime de l'Agence / du Réseau. Elles sont conservées jusqu'à demande de suppression et sont destinées à l'Agence / au Réseau. Conformément à la loi « informatique et libertés », vous disposez des droits d’accès, de rectification, d’effacement, d’opposition, de limitation et de portabilité de vos données. Vous pouvez retirer votre consentement à tout moment en contactant directement l’Agence / Le Réseau. Consultez le site https://cnil.fr/fr pour plus d’informations sur vos droits. Si vous estimez, après avoir contacté l'Agence / le Réseau, que vos droits « Informatique et Libertés » ne sont pas respectés, vous pouvez adresser une réclamation à la CNIL. Nous vous informons de l’existence de la liste d'opposition au démarchage téléphonique « Bloctel », sur laquelle vous pouvez vous inscrire ici : https://www.bloctel.gouv.fr Dans le cadre de la protection des Données personnelles, nous vous invitons à ne pas inscrire de Données sensibles dans le champ de saisie libre.
Ce site est protégé par reCAPTCHA, les Politiques de Confidentialité et les Conditions d'Utilisation de Google s'appliquent.

Se connecter
Espace propriétaire
Page d'accueil
Adhérents

© 2026 | Tous droits réservés | Traduction powered by Google |

  • Nos honoraires
  • Plan du site
  • Mentions légales
  • Admin
  • Nos liens
  • Politique RGPD

Comme beaucoup, notre site utilise les cookies

On aimerait vous accompagner pendant votre visite. En poursuivant, vous acceptez l'utilisation des cookies par ce site, afin de vous proposer des contenus adaptés et réaliser des statistiques !

Paramétrer

Cookies fonctionnelsCes cookies sont indispensables à la navigation sur le site, pour vous garantir un fonctionnement optimal. Ils ne peuvent donc pas être désactivés.

Statistiques de visitesPour améliorer votre expérience, on a besoin de savoir ce qui vous intéresse !
Les données récoltées sont anonymisées.

?

Google Analytics

En savoir plus